events1
'HUS' (3 chars)
events
16 (integer)
Interview mit Felix Bohn, Architekt, Ergotherapeut und Lichtdesigner

«Bewohnerzimmer sind in der Regel das Stiefkind der Planung»


Worauf soll beim Bau und Umbau von Alters- und Pflegeheimen geachtet werden und wie werden Spitäler altersgerecht eingerichtet? Die Antworten darauf weiss Felix Bohn. Der Architekt, Ergotherapeut, Lichtdesigner und Gerontologe zeigt im Interview praktikable Wege auf und betont: «Es besteht grosser Handlungsbedarf!»


Interview: Christoph Hämmig

In der Gesundheitsbranche predigen Sie neue Architekturansätze für altersgerechte Bauten. Wo sehen Sie den grössten Handlungsbedarf?

Felix Bohn: Bei der Planung erscheint mir ganz wichtig, dass die Architekten die Bedürfnisse der Bewohner ins Zentrum stellen und sich bewusst sind, dass sie das Zuhause alter Menschen gestalten. Das klingt eigentlich ganz einfach. In der Praxis sind wir aber weit davon entfernt, dieses Kriterium standardmässig anzuwenden.

Welchen Bedürfnissen muss mehr Rechnung getragen werden?
Felix Bohn: Da gibt es sehr viele. Als elementar erscheint mir, dass Räume geschaffen werden, welche eine hohe Wohn- und Aufenthaltsqualität aufweisen, eine autonomiefördernde Pflege ermöglichen und den Bewohnern eine optimale Privatsphäre gewähren.

Bei grossen Alterszentren ist das alles andere als einfach.
Felix Bohn: Das stimmt. Damit ein Zentrum wirtschaftlich betrieben werden kann, braucht es in der Regel etwa 100 bis 120 Bewohner. Die Herausforderung besteht nun darin, dass sich diese trotz der Grösse zu Hause fühlen können. Eine Möglichkeit sehe ich darin, dass überschaubare Pflegewohngruppen gebildet werden, die etwa 10 bis 15 Personen umfassen. In einer solchen Einheit können sich Geborgenheit und Vertrautheit entwickeln.

Sie sind Architekt und gleichzeitig Berater. In welches Projekt sind Sie derzeit involviert?
Felix Bohn: Ich werde häufig bei Architektur-Wettbewerben beigezogen und wirke in Bau- und Planungskommissionen mit. Derzeit bin ich bei Neu- und Umbauprojekten in Adliswil, Volketswil, Würenlos, Schlieren, Stans, Horgen, Schütz, St. Moritz, Samedan, Martigny und Vouvry aktiv. Bei dieser Arbeit profitiere ich davon, dass ich in meinem ersten Berufsleben Ergotherapeut war. So kann ich mein Wissen rund um die Schaffung eines optimalen Umfelds für die Selbstständigkeit von Menschen mit körperlichen Einschränkungen und Sinnesbehinderungen bereits in der Planungsphase einbringen.

Wo liegen in den genannten Projekten die grössten Herausforderungen?
Felix Bohn: Grundsätzlich sehe ich meine Funktion darin, die künftigen Bewohner zu vertreten und antizipiere ihre Sichtweise und Anforderungen an das Gebäude. Die grösste Problematik sehe ich darin, dass die Verantwortlichen oft mit einer falschen Denkweise ans Werk gehen. Ein Pflegezentrum oder ein Spital ist nicht einfach eine Architekturaufgabe mit Kostendach. Es ist genauso eine Pflege- und Betreuungskonzeptaufgabe. Deshalb sollten Pflegefachleute und Gerontologen schon bei der Planung und Jurierung auf Augenhöhe eingebunden werden. Architekten kennen in der Regel die Anforderungen an die Betreuung und Pflege, die medizinischen, sozialen und psychologischen Herausforderungen zu wenig. Es ist nicht nachvollziehbar, weshalb bei der Planung eines Pflegezentrums zwar der Beizug eines Energie- oder Landschaftsplaners verlangt wird, nicht aber der Beizug einer Pflegefachperson oder eines Gerontologen.

Immerhin gibt es Vorschriften und Normen, die es zu beachten gilt.
Felix Bohn: Die Vorgaben der Norm SIA 500 «Hindernisfreie Bauten» sind für die Planung von Pflegeeinrichtungen und Spitälern nicht hinreichend. Einzelne Kantone haben keine oder veraltete Planungsvorgaben. Da müssen Bauherren und Planer die Vorgaben selber erarbeiten beziehungsweise frühzeitig eine Fachperson beiziehen.

Welche Vorgehensweise empfehlen Sie?
Felix Bohn: Vieles wird natürlich auch richtig gemacht, das möchte ich schon auch erwähnt haben. Viel Beachtung wird den Arbeitsabläufen, den Warenflüssen, dem Handling der Schmutzwäsche, der Personalorganisation bis hin zur Signaletik geschenkt. Zentrale Faktoren wie die Altersgerechtigkeit oder Wohnqualität gehen jedoch häufig vergessen. Darüber hinaus empfehle ich, gewisse «Standards» zu hinterfragen. Alterseinrichtungen müssen ja nicht immer nach dem gleichen Raster erstellt werden. Das Gesundheitswesen bringen wir nur dann voran, wenn wir das bestehende System weiterentwickeln, optimieren und verbessern. Darum müssen kritische Fragen gestellt werden wie: Wie wollen wir die alten Menschen künftig pflegen? Mit welchen Krankheits- und Behinderungsbildern müssen wir in Zukunft rechnen? Welche Arbeitsabläufe sind sinnvoll? Decken die Bewohnerzimmer wirklich die heutigen Anforderungen ab? Und die vielleicht wichtigste Frage, die alle Beteiligten sich stellen sollten: Wie müssen wir planen, dass ich für einen Elternteil mit Überzeugung an diesem Ort einen Platz suchen würde? Oder später auch für mich selbst.

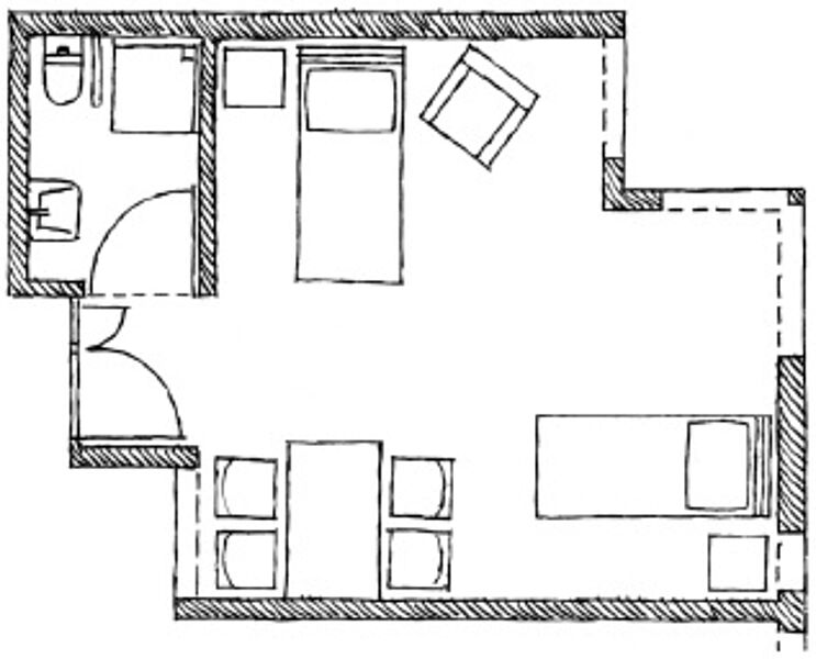
Setzen wir bei den Bewohnerzimmern ein. Diese werden seit Jahrzehnten nach dem gleichen Grundraster gebaut. Fehlen Alternativen?
Felix Bohn: Erste Voraussetzung ist, dass sich Planer und Betreiber überhaupt zum Bewohnerzimmer Gedanken machen. Bewohnerzimmer sind in der Regel das Stiefkind der Planung, obwohl sie sowohl für das Wohlbefinden der späteren Bewohner wie auch für die Grundrissstruktur zentral sind. Die Planung sollte deshalb auch von innen nach aussen geschehen. Es gilt das Architekturprinzip «form follows function». Bei einem Projekt, in das ich gegenwärtig involviert bin, gaben wir den Architekten bereits in der Wettbewerbsphase den Auftrag, ein Bewohnerzimmerim Massstab 1:20 anzufertigen. Dieser Aufwand hat sich gelohnt, da kamen wirklich gute Ideen auf den Tisch. Das zeigt den Teilnehmenden auch, dass der Fokus wirklich auf der Wohnqualität liegt, dass das gerne zitierte «Bei uns steht der Bewohner im Mittelpunkt» auch wirklich gelebt werden soll.

Wo sehen Sie den grössten Handlungsbedarf?
Felix Bohn: Es gibt verschiedene Aspekte. Ein zentraler Faktor spielt der Sanitärbereich. Die WCs mit Duschen sind meistens zu klein, messen im Durchschnitt 2 x 2 Meter. Ein alternativer Ansatz könnte sein, dass jeweils für zwei Bewohnerzimmer ein gemeinsamer grosser Sanitärraum mit einer Fläche von sechs bis acht Quadratmetern gebaut wird. Die Vorteile: Gehbehinderte Menschen können sich freier bewegen, es gibt Platz für eine grosszügige Dusche und einen Schrank und das Personal hätte mehr Platz für die Pflegetätigkeit. Mit diesem Ansatz lassen sich auch die Grundrisse der Bewohnerzimmer freier gestalten, wodurch eine bessere Möblierung möglich würde, was wiederum die Wohnlichkeit steigert.

Wurden diese Ideen in der Praxis schon umgesetzt?
Felix Bohn: Ich kenne ein sehr schönes Beispiel, das Alters- und Pflegezentrum De Drie Hoven in Amsterdam. Die Anlage wurde in den Siebzigerjahren nach dem Motto «Die Stadt im Kleinen» gebaut. Der Architekt hat dort sehr viele kleine, aber entscheidende Details umgesetzt. Ein Beispiel dazu: Die Zimmer verfügen auch über ein Fenster auf den Korridor. So fühlt sich der Bewohner weniger isoliert. Er kann am Leben vor seinem Zimmer im Altersheim teilhaben. Oder er kann einen Vorhang ziehen, wenn er wieder Privatsphäre haben will. Ein weiteres Detail: Bei den Zimmertüren lässt sich auf Wunsch nur der obere Teil öffnen – dieses Prinzip kennen wir von Häusern im Engadin oder von Stalltüren. So kann der Bewohner aktiver am Leben auf seinem Gang teilhaben und trotzdem seine Privatsphäre wahren.

In der Vergangenheit haben Sie immer wieder betont, man solle sich Gedanken über Zweibettzimmer machen. Was spricht dafür?
Felix Bohn: Einbettzimmer bieten unbestritten viele Vorteile. Einen Teil des schlechten Rufs haben die Zweibettzimmer aber auch von der ideenfreien räumlichen Gestaltung. Werden zwei Betten wie meist im Spital parallel ins Zimmer gestellt, bleibt keinem der Bewohner ein privater Bereich. Auch hier haben innovative Planer bereits Anfang der Achtzigerjahre gezeigt, dass es möglich ist, in diesen Zweibettzimmern Privatsphäre zu schaffen. Es gibt Menschen im Alter, die sehr gerne Gesellschaft haben. Insbesondere in Wohnbereichen für Menschen mit Demenz ist ein Anteil an Zweibettzimmern unbestritten. Mir geht es aber auch darum, jetzt an Lösungen für den Fall zu arbeiten, dass wir uns als Gesellschaft den Standard Einbettzimmer nicht mehr leisten können.

Insgesamt können die Zimmer für demente Personen kleiner gebaut werden.
Felix Bohn: Das ist so. Menschen mit Demenz verbringen viel weniger Zeit im Zimmer und benötigen in einem fortgeschrittenen Stadium der Erkrankung auch nicht mehr so viele persönliche Gegenstände. Dafür brauchen Sie in den Bewegungs- und Aufenthaltsbereichen viel mehr Platz. Es geht aber nicht darum, Wohnbereiche für Demenzkranke kleiner zu gestalten, sondern die Flächen anders zu verteilen.


In welche Richtung sehen Sie Handlungsbedarf?


Felix Bohn: Demenzielle Erkrankungen sind heute in Pflegezentren eher die Norm als die Ausnahme. Deshalb sollte generell demenzsensibel geplant werden und sollten beispielsweise Bewegungsbereiche wie Korridore möglichst mit viel Tageslicht versorgt werden und unterschiedliche Ausblicke bieten. Ein Wohnbereich für Menschen mit Demenz wird von der Bauherrschaft oft nur als eine «geschlossene Abteilung mit Rundlauf» definiert und bestellt. Menschen mit Demenz brauchen grosszügige und abwechslungsreiche Bewegungs- und Aufenthaltszonen. Weil diese Menschen oft tagelang nicht nach draussen können, müssen Korridore wo immer möglich entlang der Fassade führen und ist mit Oblichtern oder Wintergärten das Tageslicht in den Wohnbereich zu führen. Ergänzend dazu muss ein direkter Ausgang zu einem Naturraum vorhanden sein. Terrassen sind dafür nicht geeignet.

Wenn Sie keine Vorgaben zu beachten hätten und über unbeschränkte finanzielle Ressourcen verfügen würden: Wie würden Sie ein neues Alterszentrum planen?
Felix Bohn: Mir gefällt die Idee eines Pflegedorfes. Stellen Sie sich vor, dass eine kleine Gruppe von Menschen mit ähnlicher Biografie in einem eigenen Haus und mehrere solcher Häuser eine funktionale Einheit bilden. Mir gefällt die Idee, dass hier das Bewegungsbedürfnis einzelner Bewohner nicht als bedrohlich wahrgenommen und blockiert wird, sondern als Bedürfnis anerkannt wird und im wahrsten Sinne des Wortes Raum erhält. So wird ein vergleichsweise freier Alltag möglich. Natürlich braucht ein Pflegedorf deshalb auch mehr Platz als ein konventionelles Alterszentrum.

Was lässt sich im Gesundheitsmarkt finanziell tatsächlich umsetzen?
Felix Bohn: Das lässt sich per se nicht allgemein beantworten. Generell möchte ich dazu Folgendes sagen: Geld sparen lässt sich mittel- und langfristig, indem ein Projekt sehr gut geplant wird. Es lohnt sich, viel Zeit für die Denkarbeit zu investieren, andere Objekte zu besichtigen, sich inspirieren zu lassen und Alternativen abzuwägen. Ohne eine klare Betreuungsvision sollte keine Planung gestartet werden. Und es erscheint mir enorm wichtig, die Konzepte rund um die Bewohnerzimmer zu intensiveren und vor allem viel Energie in die Gestaltung der Räume zu legen. Ein Gebäude und ein Innenausbau, welche die Autonomie der Bewohner unterstützen, die Orientierung erleichtern, Stressoren verhindern, ergonomische Prinzipien umsetzen, Privatsphäre gewähren und eine optimale Pflegeumgebung bieten, müssen nicht teurer sein. Im Betrieb werden sie aber effizienter sein. Die älteren Menschen bleiben länger selbstständig, die Pflegenden können sich auf ihre Kernaufgaben konzentrieren und finden eine optimalere Arbeitsumgebung vor.

Häufig werden bestehende Häuser saniert. Worauf gilt es diesbezüglich zu achten?
Felix Bohn: Grundsätzlich kann die Situation immer optimiert werden. In bestehenden Alterszentren ist die Beleuchtung meist ungenügend. Ältere Menschen benötigen deutlich mehr Licht als jüngere. Ein die Orientierung und Lichtverteilung unterstützendes Farbkonzept ist nicht teurer als eine beliebige Wahl der Oberflächenfarben. Weiter empfehle ich, das Treppenhaus zugänglich zu machen und mit Handläufen und anderen Sicherheitselementen zu versehen. Jene Bewohner, die körperlich noch fit genug sind, können dann die Treppe benutzen. Das Personal tut etwas für die Fitness, gleichzeitig werden die Aufzüge entlastet. Zusätzlich gibt es viele kleine Details zu nennen. Beispiele: Die richtigen Haltegriffe am richtigen Ort anbringen, Schalter auf der richtigen Höhe platzieren, stabile Stühle mit Seitenlehnen beschaffen etc. Vieles hat mit ergonomischen Prinzipien zu tun, und muss nicht primär mehr kosten.

Mit anderen Worten: Autonomiefördernde oder wenigstens -erhaltende Massnahmen sind ganz zentral.
Felix Bohn: Ja, unbedingt! Dazu ein Beispiel: Ob jemand alleine ein WC benutzten kann, hängt nicht nur von seinem Gesundheitszustand ab, sondern in bedeutendem Masse auch von der Lage und Sitzhöhe des WCs und dem Vorhandensein von Haltegriffen am richtigen Ort. Niemand möchte sich beim Stuhlgang helfen lassen, nur weil das WC zu tief montiert ist oder ein Haltegriff fehlt oder falsch montiert ist. Das wäre eine fahrlässige Verletzung der Menschenwürde und kann auch nicht im Interesse einer wirtschaftlichen Betreuung liegen.

Lassen Sie uns noch über Spitäler sprechen. Auch dort ist die Gestaltung von Zimmern ein grosses Thema, wobei sich wenig verändert. Seit Jahrzehnten werden Patientenzimmer nach dem gleichen Muster gebaut. Muss das sein?
Felix Bohn: Nein, überhaupt nicht. Natürlich hat sich der Komfort stark verbessert. Aber die Grundrisse sind auch in den Spitälern oft nicht patientengerecht geplant und eingerichtet. Es gibt bereits Beispiele, wie Zimmer anders gestaltet werden können, damit die Patienten mehr Privatsphäre erhalten. Grundsätzlich wird die menschengerechte Raumgestaltung der Spitalzimmer, aber auch der allgemeinen Räume, noch zu wenig thematisiert. Obwohl einerseits bekannt ist, wie wichtig die Atmosphäre für das Wohlbefinden der Patienten ist und dass ältere Menschen in vielen medizinischen Fachbereichen einen bedeutenden Teil der Patienten ausmachen, sind oft auch neue Spitäler weder einladend noch altersgerecht.

Können Sie konkreter werden?
Felix Bohn: Aufgrund des demografischen Wandels wird auch die Klientel von Spitälern älter. Neben dem spezifischen Eintrittsgrund sind altersbedingt weitere Herausforderungen zu erwarten. Spitäler müssen auch durchgehend altersgerecht geplant werden. Altersgerecht ist aber mehr als rollstuhlgerecht. Beleuchtung, Signaletik, Bedienungselemente, Türen, Oberflächen etc. sollten an die Bedürfnisse von Menschen mit Geh-, Wahrnehmungs- und Sinnesbehinderungen angepasst werden.



Heime und Spitäler Ausgabe März 1/2018

EVENTS

aqua pro

B2B-Plattform in der Schweiz für Fachkräfte des globalen Wasserkreislaufs

Datum: 04.-06. Februar 2026

Ort: Bulle (CH)

analytica

Weltleitmesse für Labortechnik, Analytik, Biotechnologie und analytica conference

Datum: 24.-27. März 2026

Ort: München (D)

Techtextil

Internationale Leitmesse für technische Textilien und Vliesstoffe

Datum: 21.-24. April 2026

Ort: Frankfurt am Main (D)

PFLEGE PLUS

Die Fachmesse PFLEGE PLUS bringt Fachbesucher mit ausstellenden Unternehmen, Branchenverbände sowie Experten des Pflegemarkts zusammen.

Datum: 05.-07. Mai 2026

Ort: Stuttgart (D)

interpack

Führende Messe für Prozesse und Verpackung

Datum: 07.-13. Mai 2026

Ort: Düsseldorf (D)

ArbeitsSicherheit Schweiz

Fachmesse für Arbeitssicherheit, Gesundheitsschutz und Gesundheitsförderung am Arbeitsplatz

Datum: 20.-21. Mai 2026

Ort: Zürich (CH)

MedtecLIVE with T4M

Fachmesse für die gesamte Wertschöpfungskette der Medizintechnik

Datum: 05.-07. Juni 2026

Ort: Stuttgart (D)

all about automation

Fachmesse für Industrieautomation

Datum: 26.-27. August 2026

Ort: Zürich (CH)

Ilmac Lausanne

Networking. Forum. Aussteller

Datum: 23.-24. September 2026

Ort: Lausanne (CH)

Chillventa

Weltleitmesse der Kältetechnik

Datum: 13.-15. Oktober 2026

Ort: Nürnberg (D)

ZAGG

DER BRANCHENTREFFPUNKT MIT RELEVANTEN GASTRO-TRENDS

Datum: 18.-21. Oktober 2026

Ort: Luzern (CH)

SIAL

Fachmesse für Nahrungsmittel-Innovationen

Datum: 17.-21. Oktober 2026

Ort: Paris (F)

ALL4PACK EMBALLAGE

The global marketplace for Packaging Processing Printing Handling

Datum: 23.-26. November 2026

Ort: Paris (F)

Anuga FoodTec

Internationale Zuliefermesse für die Lebensmittel- und Getränkeindustrie

Datum: 23.-26. März 2027

Ort: Köln (D)

Achema

Internationale Leitmesse der Prozessindustrie

Datum: 14.-18. Juni 2027

Ort: Frankfurt am Main (D)

drupa

Weltweit führende Fachmesse für Drucktechnologien

Datum: 09.-17. Mai 2028

Ort: Düsseldorf (D)

Bezugsquellenverzeichnis